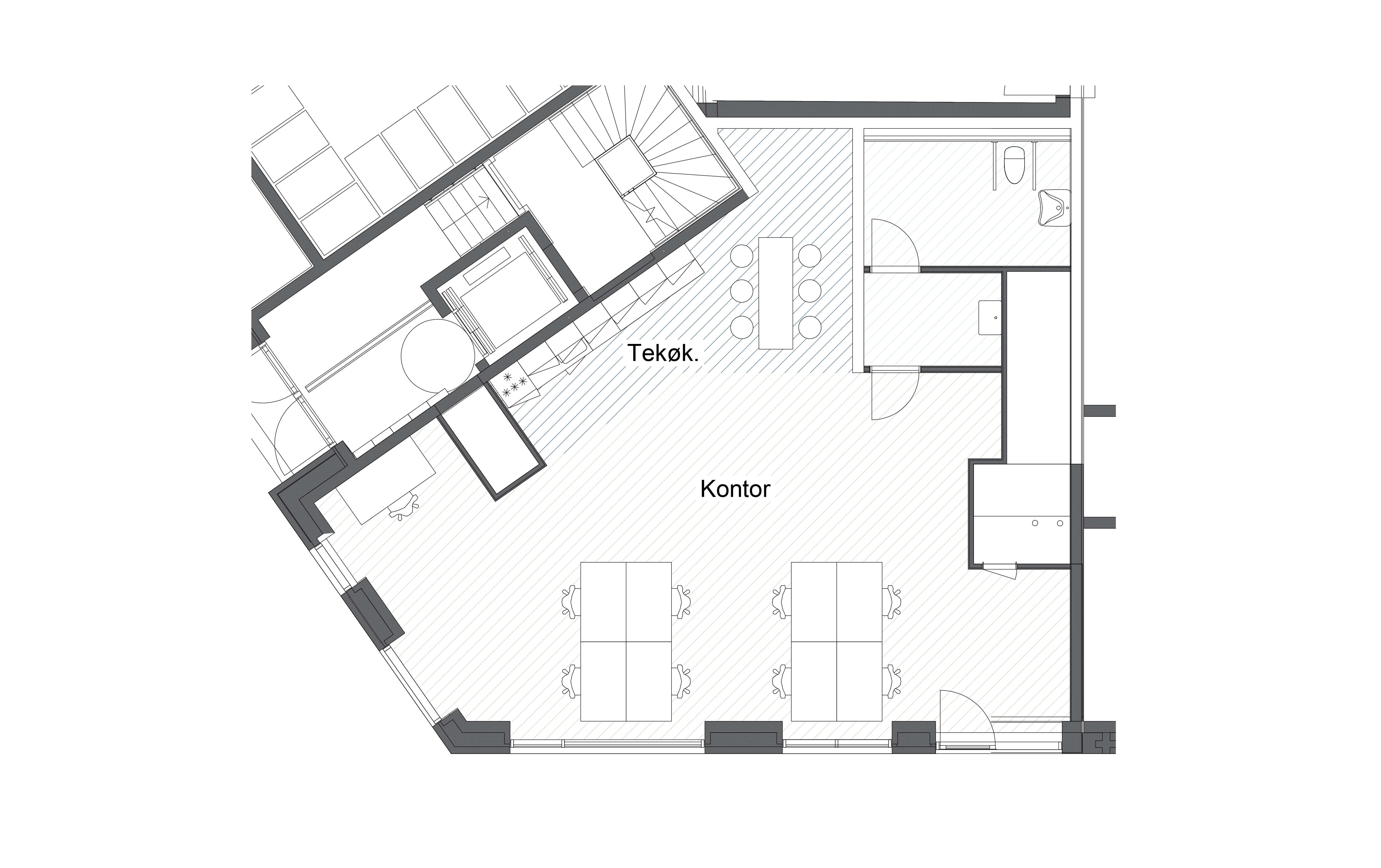
Type Kontor
Basisleje 1.760 kr./m²/år
Areal 125 m²
Energimærke A2015
Arbejdspladser 9
1799 København V

Fadet 14

Type Kontor
Basisleje 1.760 kr./m²/år
Areal 125 m²
Energimærke A2015
Arbejdspladser 9
Bestil fremvisning Plantegning Vis på kort Hent prospekt

Fadet 14, 1799 København V

Bliv en del af Carlsberg Byens erhvervsmiljø

Velkommen til en effektiv og nyopført ejendom. Velkommen til et højloftet kontor med direkte adgang fra gaden. Velkommen til Carlsberg Byens Bønecke Hus.

Ved Bryggerens gamle have, J.C. Jacobsens Have, ligger Bønecke Hus under Carlsberg Byens højeste tårn: Pasteurs Tårn. Ejendommen er nyopført og tilbyder virksomheder rummelige, lyse og effektive kvadratmeter på en attraktiv beliggenhed i hjertet af Carlsberg Byen.

 

Hent prospekt
  • Bønecke Hus

    Ejendommen fra 2021 rummer både kontorer, boliger og butikker.

Fakta

Basisleje

1.760 kr./m²/år

Aconto drift, skatter og afgifter

472 kr./m²/år

Aconto vand og varme

105 kr./m²/år

Anvendelse

Kontor

Overtagelse

Efter nærmere aftale

Stand

Nyistandsat og nyindrettet

Depositum kontant

6 måneders leje

Opsigelsesvarsel

Efter nærmere aftale

Uopsigelighed for lejer

Efter nærmere aftale

Uopsigelighed for udlejer

Efter nærmere aftale

Årlig regulering af lejen

NPI, dog min. 3 pct.

Energimærke

A2015

Momspligtig

Ja

Faciliteter

Fibernet

Tekøkken

Toilet

Cykelparkering

Depotfaciliteter

Handicapvenlig

Parkeringskælder

Nærmeste offentlige transportmuligheder

450m til den nærmeste bus

Indiakaj

1.500m til den nærmeste metro

Metrostop M3/M4: Østerport

1.500m til den nærmeste togstation

Østerport

1.500m til den nærmeste s-togstation

Østerport

Jeg kan hjælpe dig

Har du spørgsmål til lejemålet eller ønsker en fremvisning, er du velkommen til at kontakte mig.

Vil du hellere ringes op?

Ring mig op

Martin Purtoft Olsen

Asset Manager,
Asset Management

Telefon +45 91 36 66 07 E-mail